Проект Д-39 | ПСК «Н-СТРОЙ»

Электронная почта: n-stroy53@yandex.ru
+7 (921) 707-88-15, +7 (921) 707-88-20
меню


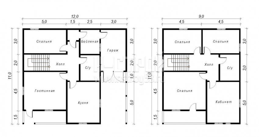
Дом из профилированного бруса 11х12
Цена «под усадку» из бруса 90×140: 
2 563 000 руб.
Цена «под усадку» из бруса 140×140: 
2 823 000 руб.
Цена «под усадку» из бруса 190×140: 
3 083 000 руб.
Цена «под ключ» из сухого бруса 90×140: 
4 272 000 руб.
Цена «под ключ» из сухого бруса 140×140: 
4 554 000 руб.
Цена «под ключ» из сухого бруса 190×140: 
4 835 000 руб.
Информация о сущности.
Габаритные размеры: 
11х12 м.
Общая площадь: 
231.00 кв.м
Срок строительства: 
30 - 40 дней
Площадь застройки: 
132.00 кв.м
Количество этажей: 
2 этажа
Гарантия
12 месяцев
Поэтажная планировка: 

Фундамент

Фундамент в стоимость строительства проекта не входит. Его можно заказать отдельно (Ленточный или свайно-винтовой фундамент рассчитывается индивидуально, в зависимости от проекта).

Основание (обвязка)

Обвязка двойная из бруса 100×150 мм. (на ребро) или 150×150 мм.

Половые лаги

Усиленные, из обрезного не строганного бруса d-40х150 мм, е/в (на ребро), с шагом не более 580мм.

Внешние стены

Профилированный брус 140×90 мм., или 140×140 мм., прямой с фасками или закругленный с внешней стороны в форме блок-хауса. Брус собирается на березовые нагеля. Между брусом прокладывается джутовый утеплитель.

Перегородки

На первом этаже из профилированного бруса 140×90 мм. На мансардном этаже (если есть в проекте) — каркасные, из доски 100×40 мм.

Лаги и балки перекрытий

Брусок 150×40 мм. (на ребро) с шагом 580 мм.

Полы

Черновой пол из обрезной доски естественной влажности 20-22 мм., на черновой пол укладывает пергамин. Чистовой пол первого и второго этажей застилается шпунтованной доской 36 мм., приколачивается каждая 6-я доска (на перетяжку).

Потолок 1-го и 2-го этажа

Прокладывается однослойная мембрана с влагозащитными свойствами, марки "Ондутис «В»",  утепляется рулонной мин.ватой «KNAUF» 100 мм, либо ,базальтовый утеплитель ROCKWOOL  и обшивается нашей фирменной имитацией бруса с шипом 1.5см камерной сушки  (класс «В»). Обносится плинтусом.

Кровля и стропильная система

Стропильная система из обрезной доски 150×40 мм., с шагом 580 мм. Обрешетка стропил из обрезной доски 20-22 мм. Кровельное покрытие — «Ондулин» (цвет на выбор: красный, коричневый, зеленый). Свесы крыши (карнизы) шириной 300-500 мм., подшиваются хвойной имитацией бруса класса «Б»

Внутренняя отделка

Потолки и все каркасные конструкции, которые есть в проекте, отделываются нашей фирменной имитацией бруса камерной сушки с большим шипом в 1.5 см.  класса «Б». На всех углах, стыках устанавливается плинтус. Гвозди для отделки оцинкованные.

Наружная отделка

Каркасные фронтоны отделываются имитацией бруса камерной сушки хвойных пород класса «Б»

Окна, двери

Окна — деревянные 1.0×1.2 м. с двойным остеклением, фурнитура в комплекте. Межкомнатные двери — филенчатые 0.8×2.0 м., петли универсальные (бабочки). Ручки и замки в комплект не входят. Окна и двери обналичиваются вагонкой хвойных пород класса «Б». Входная дверь — металлическая 0.8×2.0 м.

Лестница

Лестница на второй этаж из строганой доски одно или двух маршевая (согласно проекту)с круглыми балясинами и перилами. На втором этаже устанавливается ограждение из балясин с перилами.

Утеплитель

Пол первого этажа, мансардный этаж (если есть в проекте) утепляются минеральной ватой «KNAUF», толщиной 100 м либо базальтовый утеплитель ROCKWOOL 100мм. Межэтажное перекрытие — 50 мм

Парогидроизоляция

Ондутис D или Ондутис B

Разное

Высота 1-го этажа — 2,35± 5 см. Высота 2-го этажа — 2,25 ± 5 см. На открытой террасе (балконе) устанавливаются перила и круглые балясины.

Доставка

В стоимость входит погрузка, доставка в радиусе 500 км. от г. Боровичи. Перепробег оплачивается отдельно, из расчета 80 руб./км.

Перепланировка комнат без изменения объема расходов строительных материалов — бесплатно!

Фундамент

Фундамент в стоимость строительства проекта не входит. Его можно заказать отдельно (Ленточный или свайно-винтовой фундамент рассчитывается индивидуально, в зависимости от проекта).

Основание (обвязка)

Обвязка двойная из бруса 100×150 мм. (на ребро) или 150×150 мм.

Внешние стены

Профилированный брус 140×90 мм., или 140×140 мм., прямой с фасками или закругленный с внешней стороны в форме блок-хауса. Брус собирается на березовые нагеля. Между брусом прокладывается джутовый утеплитель.

Перегородки

На первом этаже из профилированного бруса 140×90 мм. На мансардном этаже (если есть в проекте) — каркасные, из доски 100×40 мм.

Лаги и балки перекрытий

Брусок 150×40 мм. (на ребро) с шагом 580 мм.

Полы

Черновой пол из обрезной доски естественной влажности 20-22 мм.

Кровля и стропильная система

Стропильная система из обрезной доски 150×40 мм., с шагом 580 мм. Обрешетка стропил из обрезной доски 20-22 мм. Кровельное покрытие — «Ондулин» (цвет на выбор: красный, коричневый, зеленый). Свесы крыши (карнизы) шириной 300-500 мм., подшиваются нашей фирменной имитацией бруса камерной сушки  с шипом 1.5 см класса «Б»

Внутренняя отделка

Нет

Наружная отделка

Каркасные фронтоны отделываются имитацией бруса камерной сушки пород класса «Б»

Окна, двери

Нет

Лестница

Нет

Утеплитель

Нет

Парогидроизоляция

Ондутис

Разное

Высота 1-го этажа — 2,35± 5 см. Высота 2-го этажа — 2,25 ± 5 см.

Доставка

В стоимость входит погрузка, доставка в радиусе 500 км. от г. Боровичи. Перепробег оплачивается отдельно, из расчета 80 руб./км.

Перепланировка комнат без изменения объема расходов строительных материалов — бесплатно

Перепланировка комнат без изменения объема расходов строительных материалов

бесплатно

Свайно-винтовой фундамент (материал + работа)

3500 руб./свая

Обработка основания антисептиком

200 руб./п.м.

Покраска наружных стен (материал заказчика) в 1 слой

250 руб./м2.

Дополнительное утепление 50 мм.

120 руб./м2.

Дополнительное окно

3500 руб.

Дополнительная дверь

3000 руб.

Замена ондулина на металлочерепицу

Рассчитывается
индивидуально

Замена деревянных окон на ПВХ

Рассчитывается индивидуально

Бытовка 2×3 м. для проживания бригады (остается на участке)

18000 руб.

Аренда бензогенератора (бензин заказчика)

6000 руб.

Задать вопрос / Заказать строительство

Задать вопрос / Заказать строительство

Если у Вас есть вопрос по этому проекту, или вы хотите заказать строительство по нему, Вы можете позвонить нам по телефонам +7 (921) 707-88-15, +7 (921) 707-88-20 или заполнить эту форму.

Заполнение формы ни к чему Вас не обязывает, поэтому пишите по любым вопросам

CAPTCHA
Этот вопрос задается для того, чтобы выяснить, являетесь ли Вы человеком или представляете из себя автоматическую спам-рассылку.
© 2008-2026 ПСК «Н-Строй»
Производство: Новгородская область,
Боровичский район, п. Травково

e-mail: n-stroy53@yandex.ru

Сделано в liastudio
Заказ обратного звонка
CAPTCHA
Этот вопрос задается для того, чтобы выяснить, являетесь ли Вы человеком или представляете из себя автоматическую спам-рассылку.
CAPTCHA
Этот вопрос задается для того, чтобы выяснить, являетесь ли Вы человеком или представляете из себя автоматическую спам-рассылку.