Проект К-53 | ПСК «Н-СТРОЙ»

Электронная почта: n-stroy53@yandex.ru
+7 (921) 707-88-15, +7 (921) 707-88-20
меню

Проект К-53



Каркасный дом 8х8
Закрытый контур
Лето   (100мм.): 
1 873 000 руб.
Зима   (150мм.): 
1 934 000 руб.
Зима+ (200мм.): 
2 051 000 руб.
Теплый контур
Лето   (100мм.): 
2 306 000 руб.
Зима   (150мм.): 
2 532 000 руб.
Зима+ (200мм.): 
2 849 000 руб.
С отделкой
Лето   (100мм.): 
3 075 000 руб.
Зима   (150мм.): 
3 300 000 руб.
Зима+ (200мм.): 
3 581 000 руб.
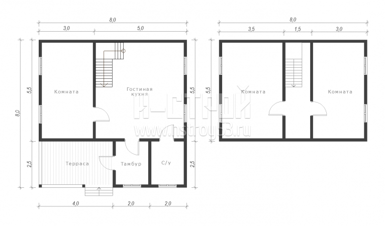
Габаритные размеры: 
8х8 м.
Общая площадь: 
112.00 кв.м
Срок строительства: 
15 - 30 дней
Площадь застройки: 
64.00 кв.м
Количество этажей: 
1 этаж + мансарда
Гарантия
12 месяцев
Поэтажная планировка: 


  Лето Зима Зима +
Сборка дома: Входит в стоимость Входит в стоимость Входит в стоимость
Бесплатная доставка дома:      
Высота потолков первого этажа 2,4 м 2,4 м 2,4 м
Высота мансардного этажа 2,4 м 2,4 м 2,4 м
Утепление: Нет. Нет. Нет.
Основание дома
Обвязка дома (двойная): Брус 100 х 150 мм (уложенный на рубероид) Брус 150 х 150 мм (уложенный на рубероид) Брус 150 х 200 мм (уложенный на рубероид)
Балки под перегородки (двойные): Брус 100х150 мм. Брус 100х150 мм. Брус 100х150 мм.
Лаги пола Доска 50 х 200 мм через 580 мм. Доска 50 х 200 мм через 580 мм. Доска 50 х 200 мм через 580 мм.
Черновой пол: Обрезная Доска толщиной 25 Обрезная Доска толщиной 25 Обрезная Доска толщиной 25
Черепной брусок: Брусок нестроганый 40 х 50 мм Брусок нестроганый 40 х 50 мм Брусок нестроганый 40 х 50 мм
Стены дома
Наружные стены каркаса: Доска 50х100 мм. Доска 50х150 мм. Доска 50х200 мм.
Укосины: Доска 50х100 мм. Доска 50х150 мм. Доска 50х200 мм.
Ригеля: Доска 50х100 мм. Доска 50х150 мм. Доска 50х200 мм.
Контробрешетка из бруска (вент. зазор) из бруска (вент. зазор) из бруска (вент. зазор)
Перегородки
Перегородки: Доска 50х100 мм. Доска 50х100 мм. Доска 50х100 мм.
Парогидроизоляция
Гидроизоляция: Онодутис D (c проклейкой) Онодутис D Онодутис D
Ветроизоляция: Онодутис A (с проклейкой) Онодутис A Онодутис A
Пароизоляция: Нет. Нет. Нет.
Утепление
Внешний контур: Нет. Нет. Нет.
Межэтажное перекрытие: Нет. Нет. Нет.
Наружная отделка
Отделка фасада дома: Имитация бруса/бревна камерной сушки Имитация бруса/бревна камерной сушки Имитация бруса/бревна камерной сушки
Внутренняя отделка
Чистовой пол Нет. Нет. Нет.
Отделка Потолков: Нет. Нет. Нет.
Отделка Стен: Нет. Нет. Нет.
Межэтажная лестница Нет. Нет. Нет.
Плинтус: Нет. Нет. Нет.
Крыша
Стропильная система: Доска 50х150 мм через 580 мм Доска 50х150 мм через 580 мм Доска 50х150 мм через 580 мм
Порешетник: Обрезная Доска толщиной 25 мм с шагом 300-380мм. Обрезная Доска толщиной 25 мм с шагом 300-380мм. Обрезная Доска толщиной 25 мм с шагом 300-380мм.
Кровельное покрытие: Ондулин (красный, коричневый, зелёный) Ондулин (красный, коричневый, зелёный) Ондулин (красный, коричневый, зелёный)
Терраса (при наличии)
Ограждение: Балясины резные/Доска строганая шлифованная Балясины резные/Доска строганая шлифованная Балясины резные/Доска строганая шлифованная
Перила: Клеенные резные Клеенные резные Клеенные резные
Окна
Оконные блоки: Окна — ПВХ 1.0×1.2 м. двухкамерные. Окна — ПВХ 1.0×1.2 м. двухкамерные. Окна — ПВХ 1.0×1.2 м. двухкамерные.
Двери
Входная: Дверь — металлическая 0.8×2.0 м. Дверь — металлическая 0.8×2.0 м. Дверь — металлическая 0.8×2.0 м.
Балконная (при наличии балкона): Дверь — ПВХ двухкамерная 0.8×2.0 м. Дверь — ПВХ двухкамерная 0.8×2.0 м. Дверь — ПВХ двухкамерная 0.8×2.0 м.
Метизы
Гвозди:
Гвозди (чёрные) для скрытых частей дома, гвозди оцинкованные для внутренней и наружной отделки

 

Дополнительно (по желанию) Камерная сушка, обработка антисептиком, строганная радиусная доска, замена окон на ПВХ, замена ондулина на металлочерепицу(рассчитывается индивидуально).

 

 


  Лето Зима Зима +
Сборка дома: Входит в стоимость Входит в стоимость Входит в стоимость
Бесплатная доставка дома:      
Высота потолков первого этажа 2,4 м 2,4 м 2,4 м
Высота мансардного этажа 2,4 м 2,4 м 2,4 м
Утепление: 100мм. Rockwool 150мм. Rockwool 200мм. Rockwool
Основание дома
Обвязка дома (двойная): Брус 100 х 150 мм (уложенный на рубероид) Брус 150 х 150 мм (уложенный на рубероид) Брус 150 х 200 мм (уложенный на рубероид)
Балки под перегородки (двойные): Брус 100х150 мм. Брус 100х150 мм. Брус 100х150 мм.
Лаги пола Доска 50 х 200 мм через 580 мм. Доска 50 х 200 мм через 580 мм. Доска 50 х 200 мм через 580 мм.
Черновой пол: Обрезная Доска толщиной 25 Обрезная Доска толщиной 25 Обрезная Доска толщиной 25
Черепной брусок: Брусок нестроганый 40 х 50 мм Брусок нестроганый 40 х 50 мм Брусок нестроганый 40 х 50 мм
Стены дома
Наружные стены каркаса: Доска 50х100 мм. Доска 50х150 мм. Доска 50х200 мм.
Укосины: Доска 50х100 мм. Доска 50х150 мм. Доска 50х200 мм.
Ригеля: Доска 50х100 мм. Доска 50х150 мм. Доска 50х200 мм.
Контробрешетка из бруска (вент. зазор) из бруска (вент. зазор) из бруска (вент. зазор)
Перегородки
Перегородки: Доска 50х100 мм. Доска 50х100 мм. Доска 50х100 мм.
Парогидроизоляция
Гидроизоляция: Онодутис D (c проклейкой) Онодутис D Онодутис D
Ветроизоляция: Онодутис A (с проклейкой) Онодутис A Онодутис A
Пароизоляция: Онодутис B Онодутис B Онодутис B
Утепление
Внешний контур: Базальтовый утеплитель ROCKWOOL 100 мм Базальтовый утеплитель ROCKWOOL 150 мм Базальтовый утеплитель ROCKWOOL 200 мм
Межэтажное перекрытие: Базальтовый утеплитель ROCKWOOL 100 мм Базальтовый утеплитель ROCKWOOL 100 мм Базальтовый утеплитель ROCKWOOL 100 мм
Наружная отделка
Отделка фасада дома: Имитация бруса/бревна камерной сушки Имитация бруса/бревна камерной сушки Имитация бруса/бревна камерной сушки
Внутренняя отделка
Чистовой пол Нет. Нет. Нет.
Отделка Потолков: Нет. Нет. Нет.
Отделка Стен: Нет. Нет. Нет.
Межэтажная лестница Нет. Нет. Нет.
Плинтус: Нет. Нет. Нет.
Крыша
Стропильная система: Доска 50х150 мм через 580 мм Доска 50х150 мм через 580 мм Доска 50х150 мм через 580 мм
Порешетник: Обрезная Доска толщиной 25 мм с шагом 300-380мм. Обрезная Доска толщиной 20 мм с шагом 300-380мм. Обрезная Доска толщиной 20 мм с шагом 300-380мм.
Кровельное покрытие: Ондулин (красный, коричневый, зелёный) Ондулин (красный, коричневый, зелёный) Ондулин (красный, коричневый, зелёный)
Терраса (при наличии)
Ограждение: Балясины резные/Доска строганая шлифованная Балясины резные/Доска строганая шлифованная Балясины резные/Доска строганая шлифованная
Перила: Клеенные резные Клеенные резные Клеенные резные
Окна
Оконные блоки: Окна — ПВХ 1.0×1.2 м. двухкамерные. Окна — ПВХ 1.0×1.2 м. двухкамерные. Окна — ПВХ 1.0×1.2 м. двухкамерные.
Двери
Входная: Дверь — металлическая 0.8×2.0 м. Дверь — металлическая 0.8×2.0 м. Дверь — металлическая 0.8×2.0 м.
Балконная (при наличии балкона): Дверь — ПВХ двухкамерная 0.8×2.0 м. Дверь — ПВХ двухкамерная 0.8×2.0 м. Дверь — ПВХ двухкамерная 0.8×2.0 м.
Метизы
Гвозди:
Гвозди (чёрные) для скрытых частей дома, гвозди оцинкованные для внутренней и наружной отделки

 

Дополнительно (по желанию) Камерная сушка, обработка антисептиком, строганная радиусная доска, замена окон на ПВХ, замена ондулина на металлочерепицу(рассчитывается индивидуально).

 

 


  Лето Зима Зима +
Сборка дома: Входит в стоимость Входит в стоимость Входит в стоимость
Бесплатная доставка дома:      
Высота потолков первого этажа 2,4 м 2,4 м 2,4 м
Высота мансардного этажа 2,4 м 2,4 м 2,4 м
Утепление: 100мм. Rockwool 150мм. Rockwool 200мм. Rockwool
Основание дома
Обвязка дома (двойная): Брус 100 х 150 мм (уложенный на рубероид) Брус 150 х 150 мм (уложенный на рубероид) Брус 150 х 200 мм (уложенный на рубероид)
Балки под перегородки (двойные): Брус 100х150 мм. Брус 100х150 мм. Брус 100х150 мм.
Лаги пола Доска 50 х 200 мм через 580 мм. Доска 50 х 200 мм через 580 мм. Доска 50 х 200 мм через 580 мм.
Черновой пол: Обрезная Доска толщиной 25 Обрезная Доска толщиной 25 Обрезная Доска толщиной 25
Черепной брусок: Брусок нестроганый 40 х 50 мм Брусок нестроганый 40 х 50 мм Брусок нестроганый 40 х 50 мм
Стены дома
Наружные стены каркаса: Доска 50х100 мм. Доска 50х150 мм. Доска 50х200 мм.
Укосины: Доска 50х100 мм. Доска 50х150 мм. Доска 50х200 мм.
Ригеля: Доска 50х100 мм. Доска 50х150 мм. Доска 50х200 мм.
Контробрешетка из бруска (вент. зазор) из бруска (вент. зазор) из бруска (вент. зазор)
Перегородки
Перегородки: Доска 50х100 мм. Доска 50х100 мм. Доска 50х100 мм.
Парогидроизоляция
Гидроизоляция: Онодутис D (c проклейкой) Онодутис D Онодутис D
Ветроизоляция: Онодутис A (с проклейкой) Онодутис A Онодутис A
Пароизоляция: Онодутис B Онодутис B Онодутис B
Утепление
Внешний контур: Базальтовый утеплитель ROCKWOOL 100 мм Базальтовый утеплитель ROCKWOOL 150 мм Базальтовый утеплитель ROCKWOOL 200 мм
Межэтажное перекрытие: Базальтовый утеплитель ROCKWOOL 100 мм Базальтовый утеплитель ROCKWOOL 100 мм Базальтовый утеплитель ROCKWOOL 100 мм
Наружная отделка
Отделка фасада дома: Имитация бруса/бревна камерной сушки Имитация бруса/бревна камерной сушки Имитация бруса/бревна камерной сушки
Внутренняя отделка
Чистовой пол Доска сухая шпунтованная 36мм Доска сухая шпунтованная 36мм Доска сухая шпунтованная 36мм
Отделка Потолков: имитация бруса/камерной сушки имитация бруса/камерной сушки имитация бруса/камерной сушки
Отделка Стен: Имитация бруса/ камерной сушки Имитация бруса/ камерной сушки Имитация бруса/ камерной сушки
Межэтажная лестница Силовая конструкция -брус,ступени, Балясины точеные, перилла резные Силовая конструкция -брус,ступени, Балясины точеные, перилла резные Силовая конструкция -брус,ступени, Балясины точеные, перилла резные
Плинтус: Фигурный камерной сушки Фигурный камерной сушки Фигурный камерной сушки
Крыша
Стропильная система: Доска 50х150 мм через 580 мм Доска 50х150 мм через 580 мм Доска 50х150 мм через 580 мм
Порешетник: Обрезная Доска толщиной 25 мм с шагом 300-380мм. Обрезная Доска толщиной 25 мм с шагом 300-380мм. Обрезная Доска толщиной 25 мм с шагом 300-380мм.
Кровельное покрытие: Ондулин (красный, коричневый, зелёный) Ондулин (красный, коричневый, зелёный) Ондулин (красный, коричневый, зелёный)
Терраса (при наличии)
Ограждение: Балясины резные/Доска строганая шлифованная Балясины резные/Доска строганая шлифованная Балясины резные/Доска строганая шлифованная
Перила: Клеенные резные Клеенные резные Клеенные резные
Окна
Оконные блоки: Окна — ПВХ 1.0×1.2 м. двухкамерные. Окна — ПВХ 1.0×1.2 м. двухкамерные. Окна — ПВХ 1.0×1.2 м. двухкамерные.
Двери
Входная: Дверь — металлическая 0.8×2.0 м. Дверь — металлическая 0.8×2.0 м. Дверь — металлическая 0.8×2.0 м.
Балконная (при наличии балкона): Дверь — ПВХ двухккмерная 0.8×2.0 м. Дверь — ПВХ двухккмерная 0.8×2.0 м. Дверь — ПВХ двухккмерная 0.8×2.0 м.
Межкомнатные: Филенчатые 0.8×2.0 м., петли универсальные (бабочки). Ручки и замки в комплект не входят. Филенчатые 0.8×2.0 м., петли универсальные (бабочки). Ручки и замки в комплект не входят. Филенчатые 0.8×2.0 м., петли универсальные (бабочки). Ручки и замки в комплект не входят..
Метизы
Гвозди:
Гвозди (чёрные) для скрытых частей дома, гвозди оцинкованные для внутренней и наружной отделки

 

Дополнительно (по желанию) Камерная сушка, обработка антисептиком, строганная радиусная доска, замена окон на ПВХ, замена ондулина на металлочерепицу(рассчитывается индивидуально).

 

 

Перепланировка комнат без изменения объема расходов строительных материалов

бесплатно

Свайно-винтовой фундамент (материал + работа)

3500 руб./свая

Обработка основания антисептиком

200 руб./п.м.

Покраска наружных стен (материал заказчика) в 1 слой

250 руб./м2.

Дополнительное утепление 50 мм.

120 руб./м2.

Дополнительное окно

3500 руб.

Дополнительная дверь

3000 руб.

Замена ондулина на металлочерепицу

Рассчитывается
индивидуально

Замена деревянных окон на ПВХ

Рассчитывается индивидуально

Бытовка 2×3 м. для проживания бригады (остается на участке)

18000 руб.

Аренда бензогенератора (бензин заказчика)

6000 руб.

Задать вопрос / Заказать строительство

Задать вопрос / Заказать строительство

Если у Вас есть вопрос по этому проекту, или вы хотите заказать строительство по нему, Вы можете позвонить нам по телефонам +7 (921) 707-88-15, +7 (921) 707-88-20 или заполнить эту форму.

Заполнение формы ни к чему Вас не обязывает, поэтому пишите по любым вопросам

CAPTCHA
Этот вопрос задается для того, чтобы выяснить, являетесь ли Вы человеком или представляете из себя автоматическую спам-рассылку.
© 2008-2026 ПСК «Н-Строй»
Производство: Новгородская область,
Боровичский район, п. Травково

e-mail: n-stroy53@yandex.ru

Сделано в liastudio
Заказ обратного звонка
CAPTCHA
Этот вопрос задается для того, чтобы выяснить, являетесь ли Вы человеком или представляете из себя автоматическую спам-рассылку.
CAPTCHA
Этот вопрос задается для того, чтобы выяснить, являетесь ли Вы человеком или представляете из себя автоматическую спам-рассылку.